Property Documents
✕
102 Corey Colonial
gallery
overview
floor plans
map
Contact
Menu
Contact
102 Corey Colonial
Agawam, Massachusetts 01001
Offered at
$
Gallery
View 40 Photos
Contact
Overview
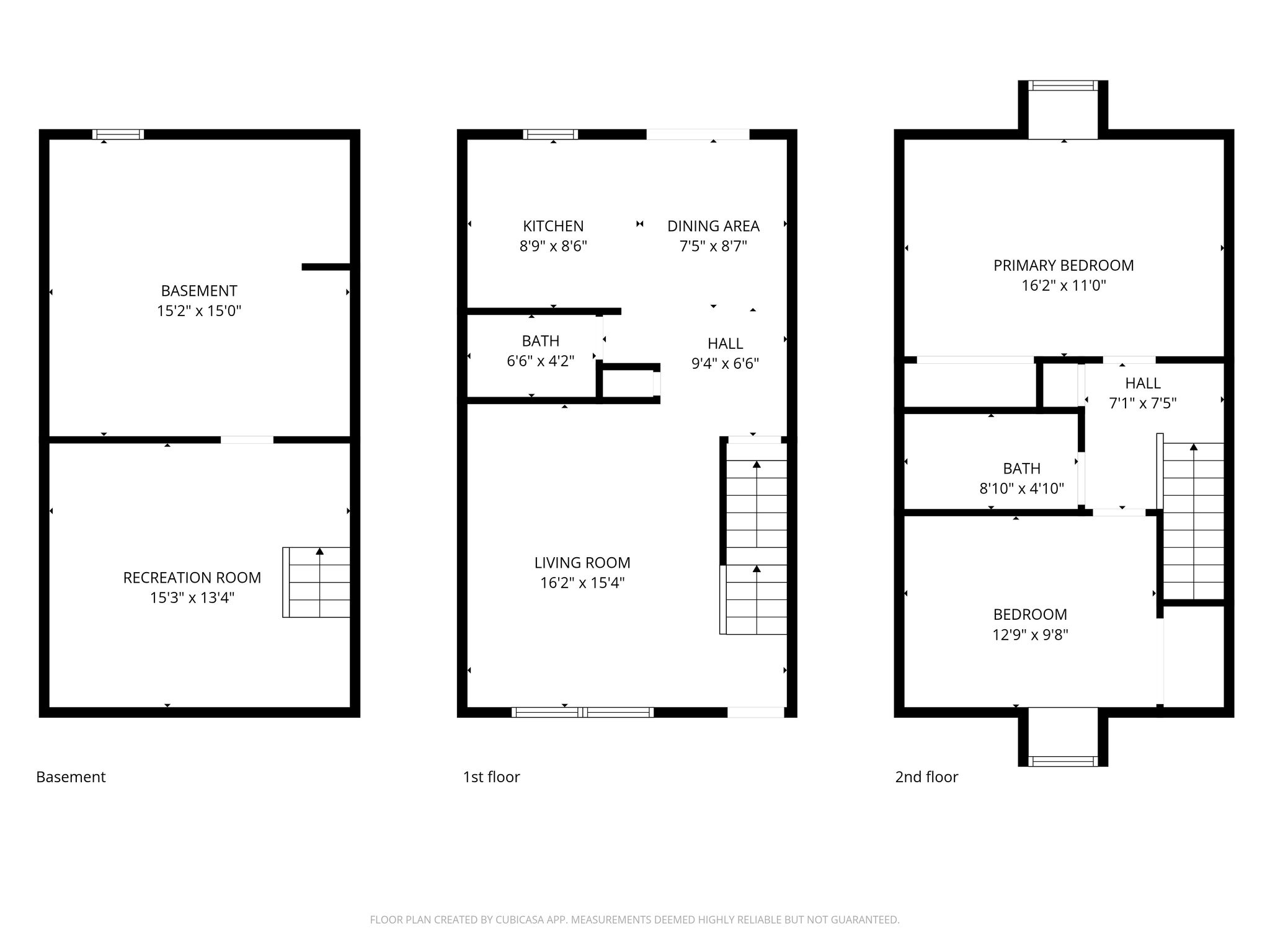
Floor Plans
Presented by
Amanda Berube
(860) 716-9430
aberube@rovihomes.com
Get in touch
First Name*
Last name*
Phone number*
Email address*
Your message*
Send Message
Thank you!
Your message is sent.
We will be in touch with you soon.
Excellent
Location