Active

34 Crest Road Monson, Massachusetts 01057

Offered at $390,000
Beds 4
Baths 2
Square Feet 2,096
acre lot 1.25

Overview

about details

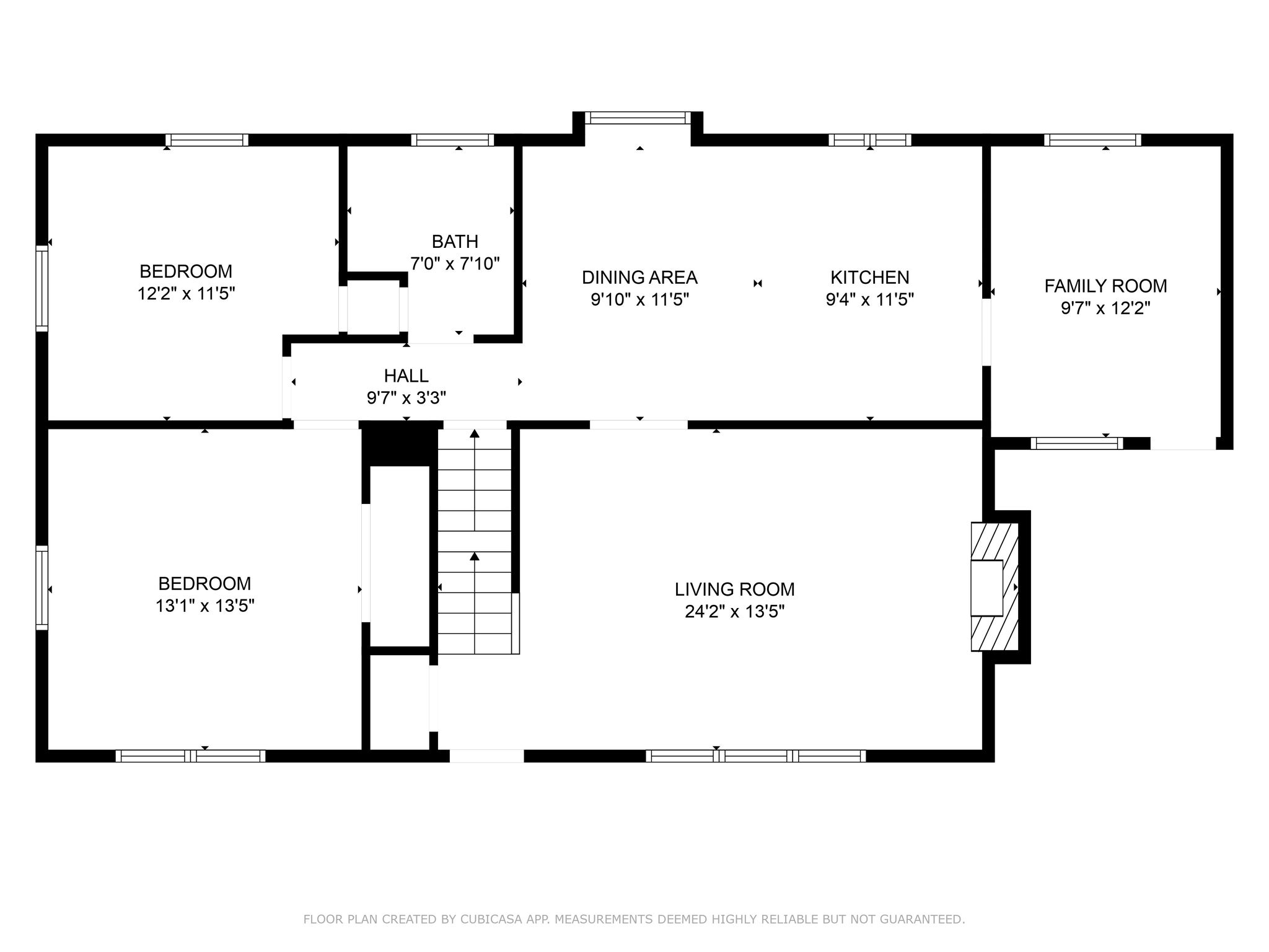
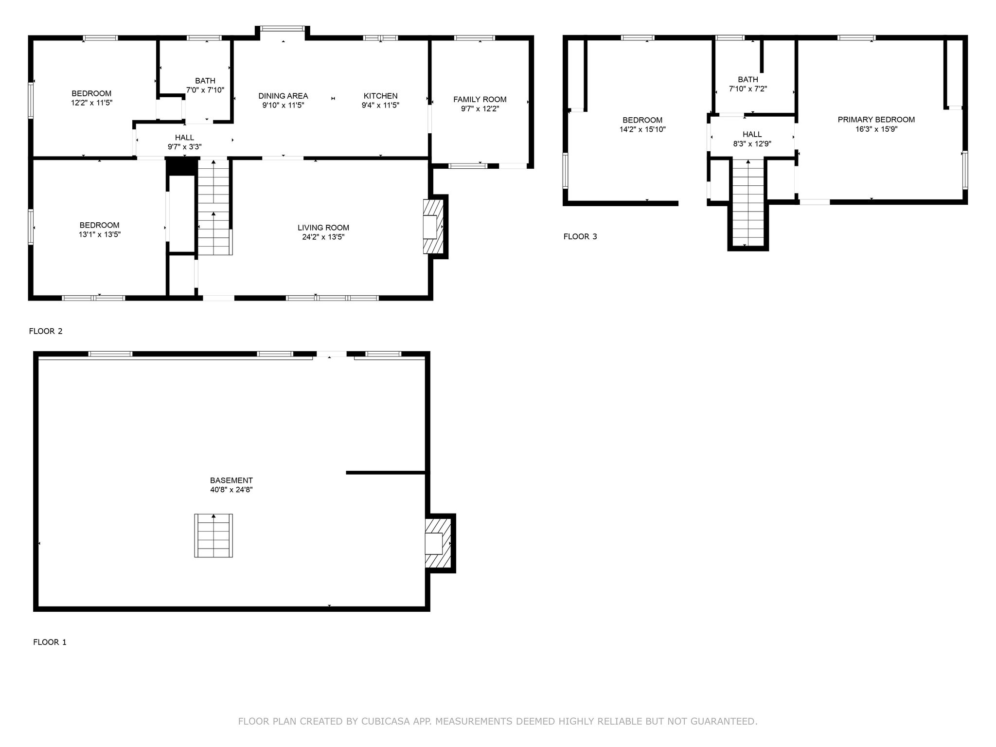
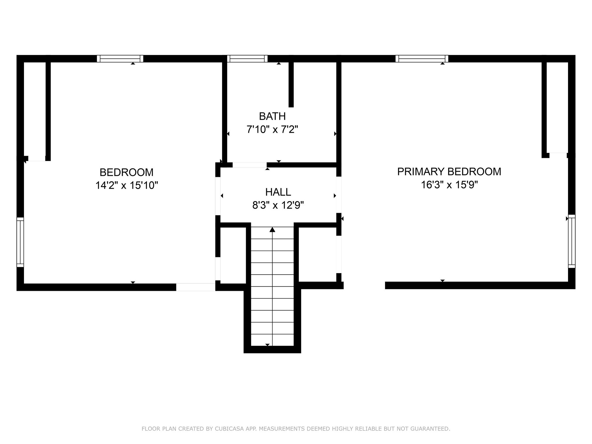
This one owner 4-bedroom cape cod style home has been lovingly maintained and offers so much country charm and character. Located in a quiet neighborhood setting this great property has 1.25 acres of wooded land with stone walls, brick patio, storage shed and an oversized 1 car garage with plenty of extra space. The first floor offers an inviting breezeway with a Dutch door that leads to the country kitchen with custom built cabinets and a dining area with a window seat, the large living room has pegged wood floors, coat closet and a wood burning fireplace, 2 nice sized bedrooms with ample closet space and wood floors and a full bathroom. The second floor offers 2 additional bedrooms with plenty of storage space, wainscoting and wood floors, and a full bathroom. Full walk out basement offers a 2nd fireplace with wood burning stove.

Property Type Single family
MLS # 73267615
Year Built 1963
Parking Spots 5
Garage Attached

Features

Quiet and Private Hardwood Floors

Floor plans

1st_floor_34_crest_road_monson_with_dim 2nd_floor_34_crest_road_monson_with_dim 3rd_floor_34_crest_road_monson_with_dim all_floors_34_crest_road_monson_with_dim

Get in touch

Thank you!

Your message is sent.

We will be in touch with you soon.

34 Crest Road, Monson, Massachusetts 01057, United States