Overview

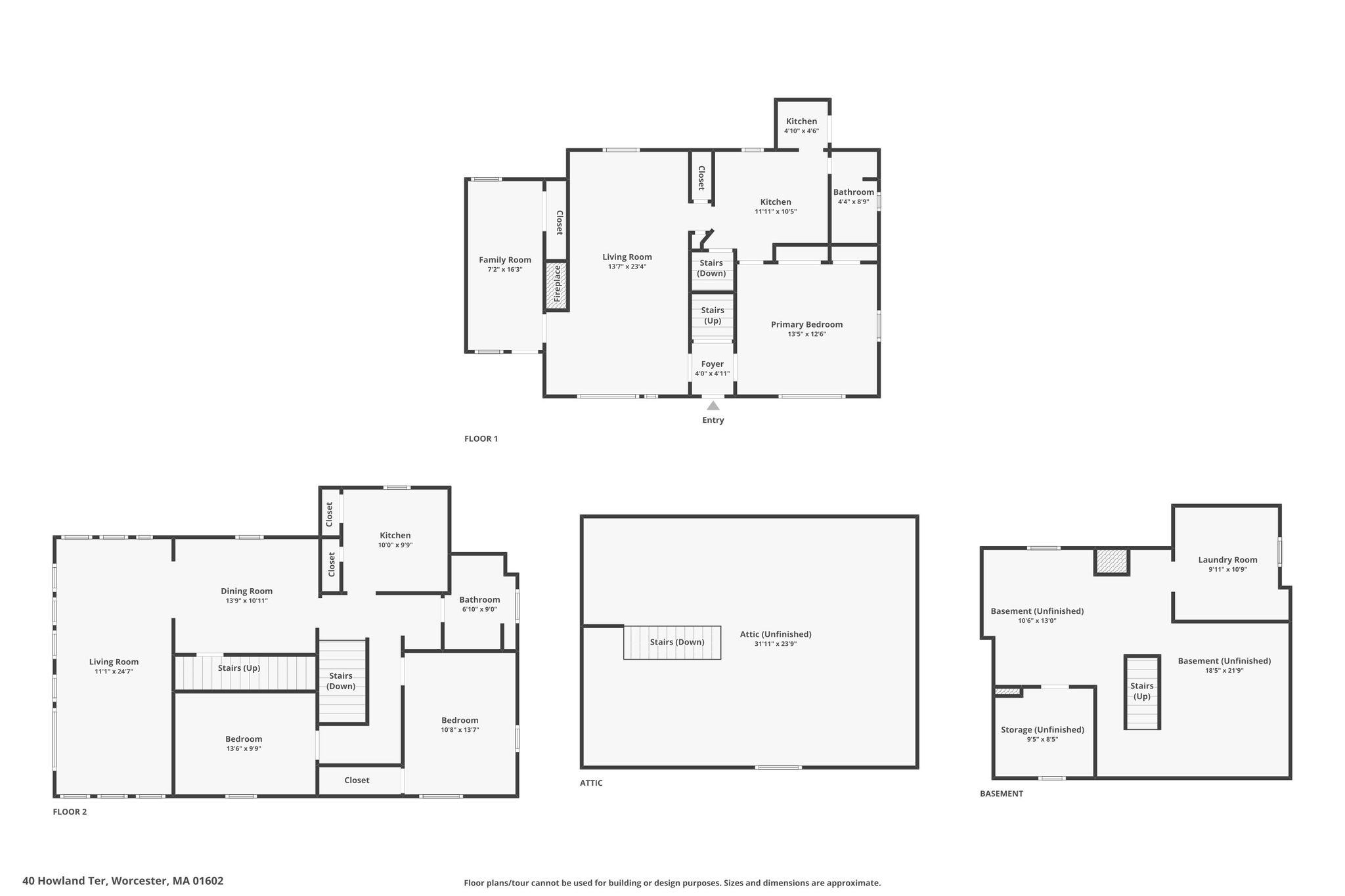
An exceptional investment or owner-occupant opportunity on Worcester’s West Side, this updated two-family residence blends modern upgrades with classic appeal. Each apartment offers 2 bedrooms, hardwood floors, recessed lighting, and in-unit laundry hookups. The kitchens are thoughtfully updated with stainless-steel appliances, granite countertops, and shaker-style cabinetry. The first floor features a wood-burning fireplace and potential in the walkout basement, while the second floor boasts a sun-filled room framed by insulated windows and access to a spacious walk-up attic, offering the option for additional living space. Outdoors, enjoy a generous yard bordered by a wooded backdrop, perfect for added privacy. This versatile property provides both immediate comfort and long-term value in a sought-after location.

pattern image
40HowlandTerrace_0002

3D Tour

40 Howland Terrace, Worcester, MA 01602
pattern white image
pattern white image

Floor Plans

pattern white image
pattern white image

Videos

Video 40 Howland Terrace, Worcester, MA 01602

Presented by

/
user headshot
Kevin Kalaghan
ROVI Homes LEADS (508) 479-3734
pattern white image

Get in touch

Thank you!

Your message is sent.

We will be in touch with you soon.

pattern image

Location

pattern image