Overview

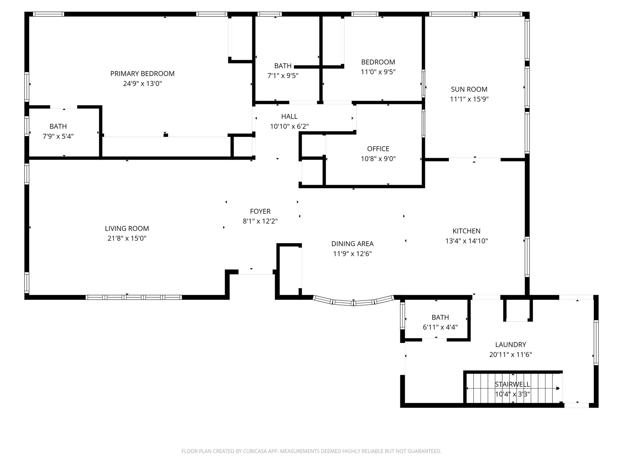
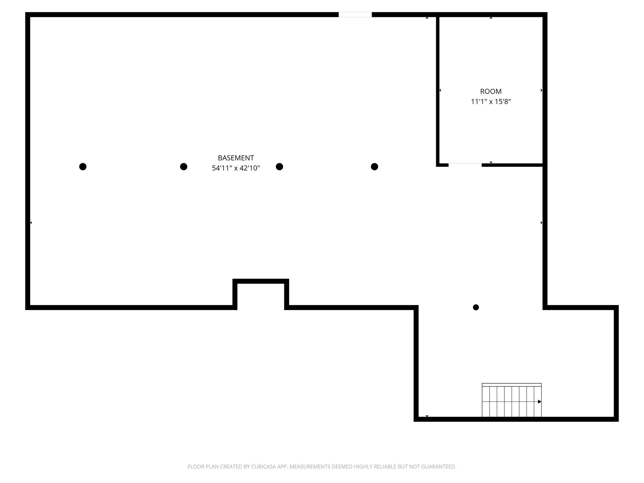
This custom-built executive ranch offers 2,100 square feet of living space on a beautiful 0.70-acre lot. A brand-new entry door welcomes you into the spacious living room featuring teak parquet floors, custom window treatments, a built-in cherry credenza, and a bay window that fills the room with natural light. The living room flows into a large custom kitchen with a dining area, abundant cherry cabinetry, Corian countertops, a coffee or dry bar, center island, tiled floors, pantry closet, and French doors leading to the three-season sunroom. The mudroom off the two-car garage provides ample space for coats and boots, a laundry area with cabinets, washer and dryer included, and a half bath. There’s exterior access to a large patio and a huge basement with storage shelving and a safe room. The primary suite boasts gorgeous wood flooring, 3 generous closets, and a full bath. Additional bedrooms feature newer walnut floors and plenty of closet space. The home also has a brand-new roof, outside sensor lights, and a Generac whole house generator for added peace of mind.

Property Type Single family
Year Built 1989
Parking Spots 2
Garage Attached
pattern image
9_Jim_Ash_St_Palmer_MA_01069_USA_-_Brenda_Lee_Binczewski_001
9_Jim_Ash_St_Palmer_MA_01069_USA_-_Brenda_Lee_Binczewski_002
pattern white image

Features

check mark icon Large Kitchen
check mark icon Oversized Windows
check mark icon Open Floor Plan
check mark icon Large Lot
check mark icon Shopping Nearby
check mark icon Side-by-Side Washer and Dryer
check mark icon Hardwood Floors
check mark icon Quiet and Private
pattern white image
pattern white image

Floor Plans

pattern white image
pattern white image

Videos

ICReel

Presented by

/
user headshot
Brenda Lee Binczewski
RE/MAX Connections (413) 427-4286 DRE: 9021369
pattern white image

Get in touch

Thank you!

Your message is sent.

We will be in touch with you soon.

pattern image

Location

pattern image